3465 Brush Creek Rd
Oklahoma City, OK 73120


  • $549,900
  • 3 Bedrooms
  • 3.5 Bathrooms
  • Lot 0.33 Acres
  • 2 Parking Spots
  • Built in 1985

Details

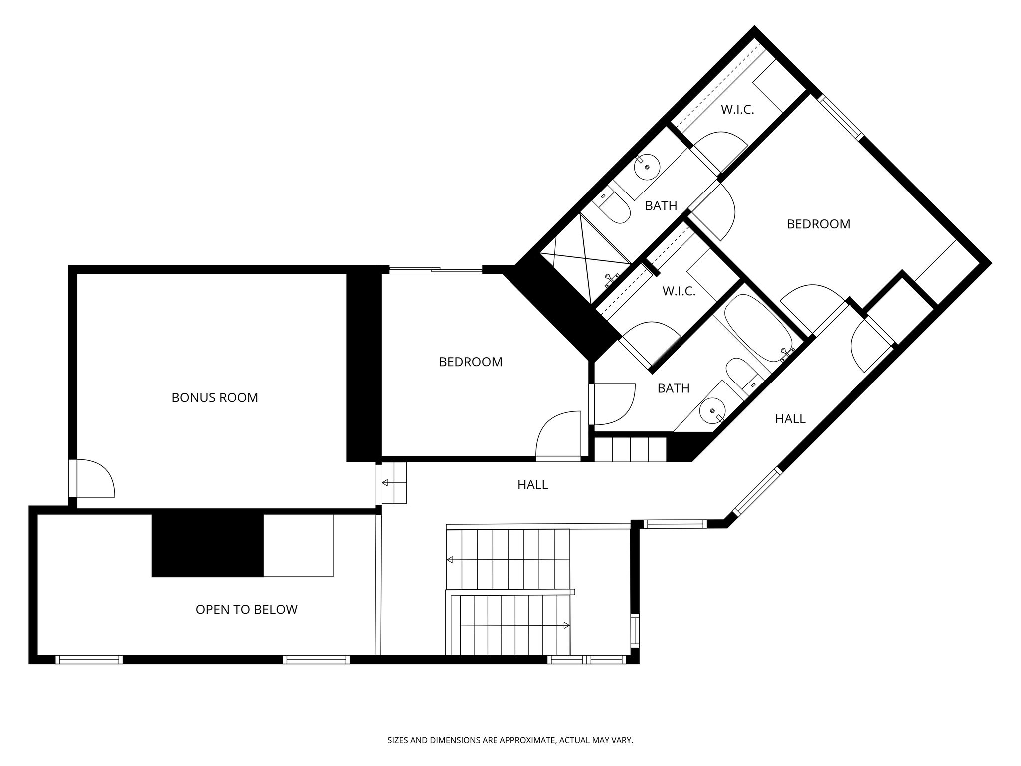
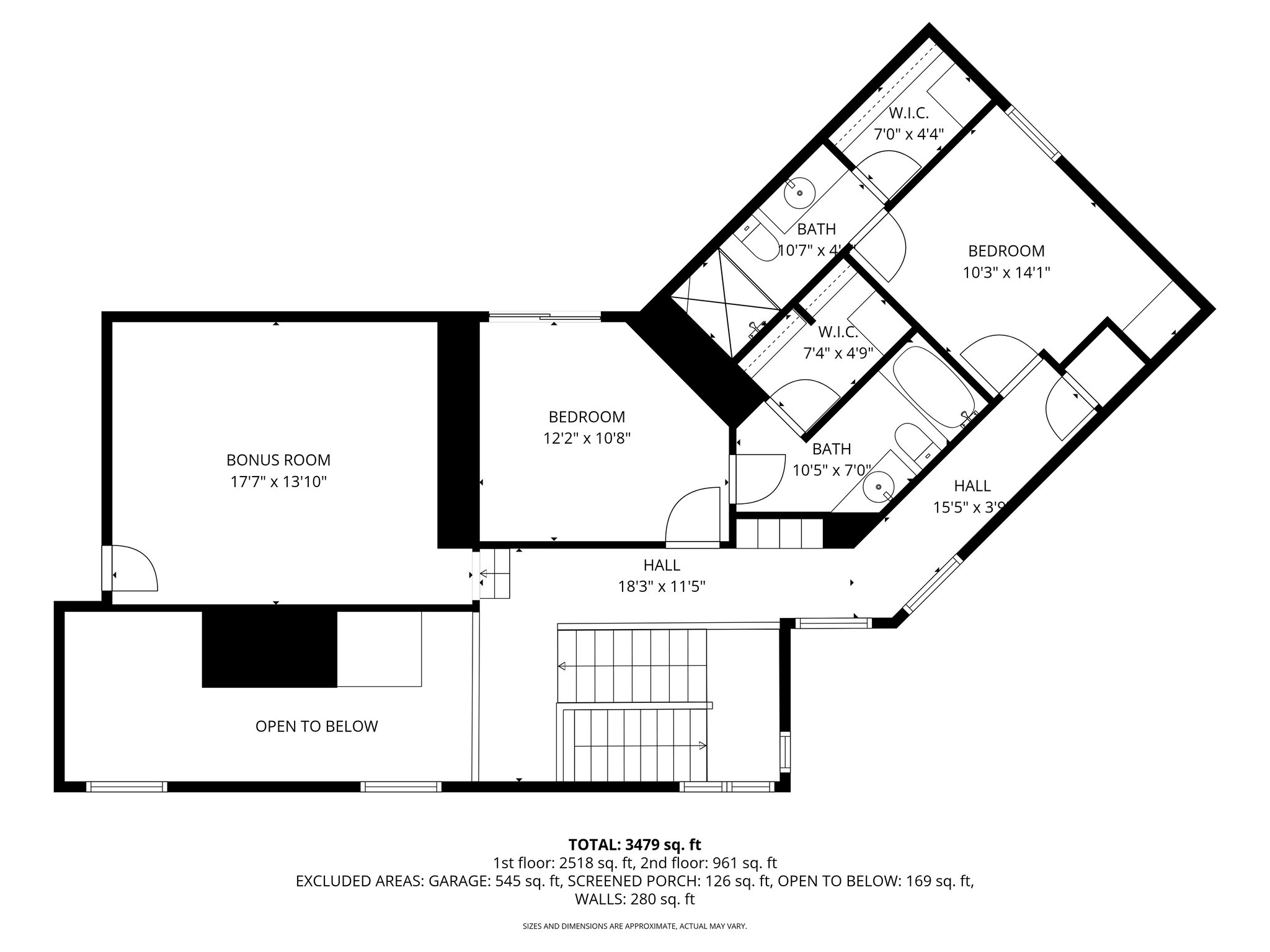
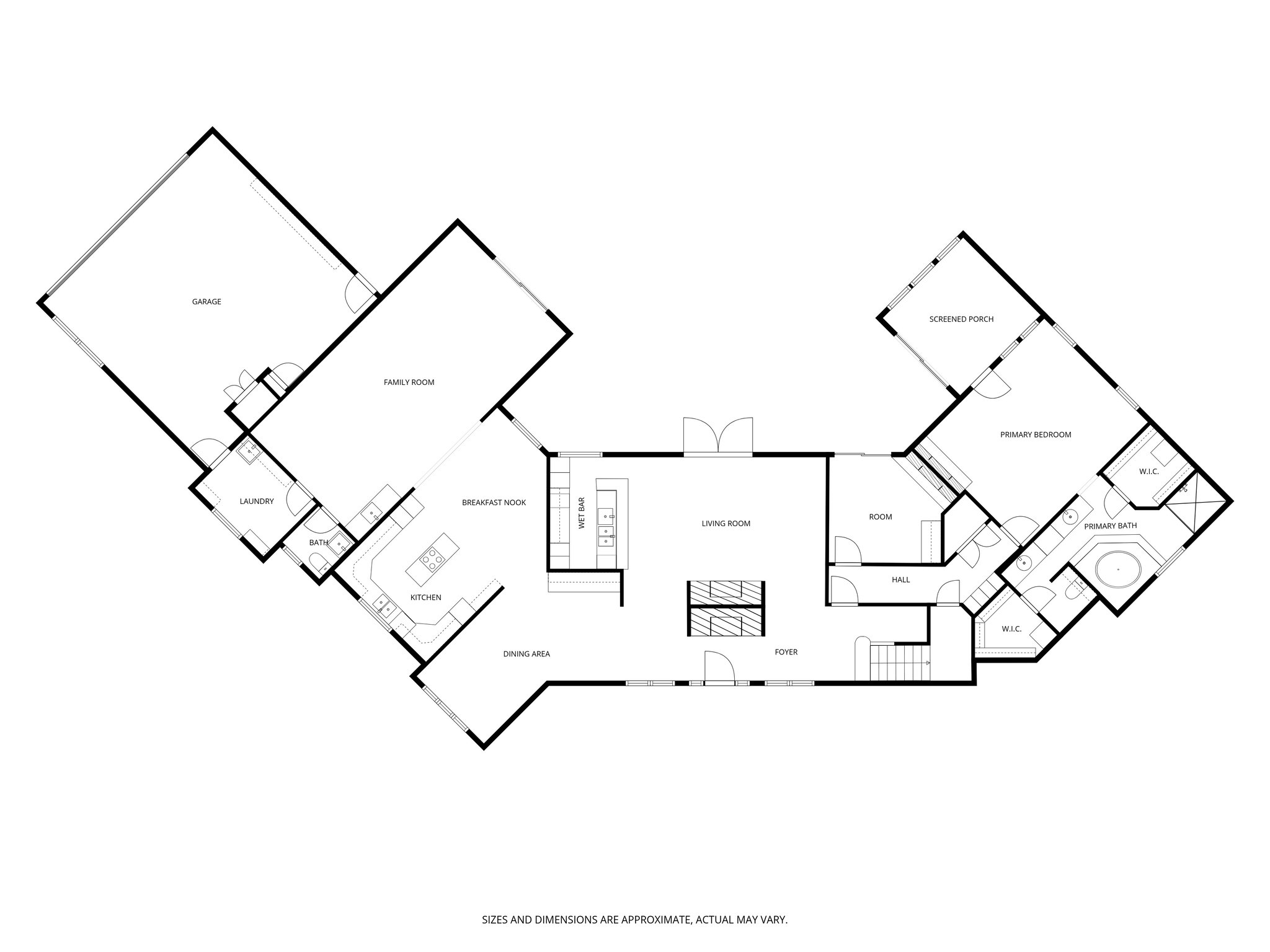
Located on a corner lot in a quiet cul-de-sac of desirable North Quail Creek, this spacious home offers exceptional space and character throughout. The floor plan includes 3 bedrooms, a study, formal dining room, bonus room, and two living areas, providing flexibility and room for everyone. The home is also located within the highly regarded Edmond School District. The primary suite is conveniently located on the first level and serves as a private retreat featuring its own fireplace and access to a dedicated spa room with a hot tub. The primary bath also includes a large jacuzzi bathtub, separate shower, double vanities, and generous his-and-hers closets. Thoughtfully designed for privacy and functional flow, the study and primary suite are situated down their own separate hallway, creating a quiet and secluded wing away from the main living spaces. Upstairs, you will find two secondary bedrooms along with a bonus area. Each bedroom in the home includes its own en suite bathroom, offering comfort and privacy for family members and guests alike. The home offers two inviting living areas that open onto the large backyard patio, creating excellent flow for everyday living and entertaining. One of the living spaces features a grand stone fireplace and an impressive wet bar complete with a large bar sink, built-in wine shelving, and custom cabinetry. The second family area features a huge open-concept room that offers incredible flexibility for a variety of uses. The study is beautifully finished with rich woodwork and includes a fireplace, making it an ideal home office or library. The centrally located kitchen provides generous cabinet storage and ample countertop space for preparation and gathering. The cabinet pantry features convenient pull-out shelving. Just beyond the living spaces, step outside to a beautiful backyard designed for relaxation and entertaining, featuring a large swimming pool and plenty of space to enjoy Oklahoma’s warm seasons.

Images

Floor Plans